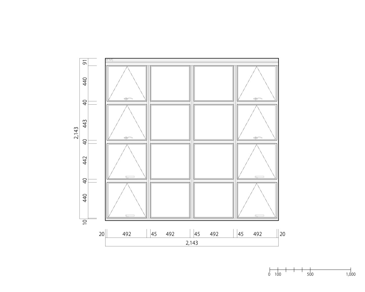
工業製品を駆使した徹底的なローコストで実現した建築家の自邸で、両親の住居を含む二世帯住宅として計画された。南面にはかつて緑に覆われた丘陵が広がっており、リビングの大開口はそのピクチャウィンドウであった。大開口の実現のために、この部分だけ鉄骨でフレームが組まれている。その隣には大きさが対比されるように、設計者が「パタパタ窓」と呼ぶ比較的小さなフラッシュ窓とすりガラスがグリッド状に組まれている。この手法はその後に手がけた建築にもたびたび登場する。南面を除いた各面には、すりガラスの縦長の片開き窓がとりつき、住宅内部に柔らかな光を充填する。
Virtual Tour
full screen
Drawings

2階寝室 パタパタ窓

リビング 大開口
Gallery

2階寝室のパタパタ窓

外観

リビングの大開口

外観


庇と窓の細部

リビングの大開口

リビングの大開口とブラインド

2階からリビングを見下ろす

玄関とリビングを区切るベンチ

リビング壁面

2階寝室のパタパタ窓


すりガラスを採用したキッチンの窓


ダイニングの縦長の窓

ダイニングの縦長の窓を外から見る